
MIL-DTL-1222J
Thread length dimensions for studs, type I, II, III.
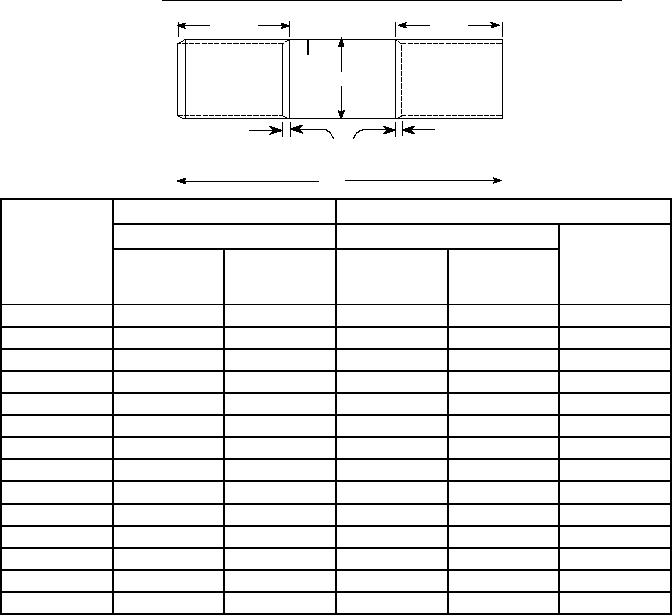
TABLE VII.
D
C
A
NUT
STUD
2½ IMPERFECT
END
END
THREADS MAX
B
1,2
Nominal Size
Minimum Thread Length (inches)
3
Threads Per Inch
Nut end (D)
Coarse
Fine
Up to
Over
Stud end
thread
Thread
6 inches
6 inches
4
Inch
(C)
series
Series
long (B)
long (B)
¼
20
28
0.750
1.000
0.375
5
/6
18
24
0.875
1.125
0.460
1
3
/
16
24
1.000
1.250
0.562
8
7
/6
14
20
1.125
1.375
0.656
1
½
13
20
1.250
1.500
0.750
9
/6
12
18
1.375
1.625
0.844
1
5
/
11
18
1.500
1.750
0.937
8
¾
10
16
1.750
2.000
1.125
7
/
9
14
2.000
2.250
1.312
8
1
8
12
2.250
2.500
1.500
1
1/
7
12
2.500
2.750
1.687
8
1¼
7
12
2.750
3.000
1.875
3
1/
6
12
3.000
3.250
2.062
8
1½
6
12
3.250
3.500
2.500
Notes:
1 When studs are too short to be threaded as specified, the threading
shall be of equal length from each end to the center and the ends
shall be rounded or chamfered. Imperfect or incomplete threads at the
junction of the two thread classes shall not exceed 2½ threads and
shall occur in the nut end.
2 The maximum thread length shall be the specified minimum length plus
3/16 inch or 2½ threads, whichever is greater.
3 Thread taper variations shall fall within the applicable pitch diameter
tolerances.
4 The stud end of studs shall be chamfered 45 to 50 degrees from a point
1/64 to 1/32 inches below the root diameter of the thread.
38
For Parts Inquires call Parts Hangar, Inc (727) 493-0744
© Copyright 2015 Integrated Publishing, Inc.
A Service Disabled Veteran Owned Small Business